Teatro Greppi - Bergamo
L'intervento riguarda il rilievo e la modellazione 3D del Teatro Greppi in Bergamo finalizzato ad un progetto di ristrutturazione e restauro.
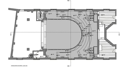
Il rilievo
Considerata la complessità della struttura, la necessità di rilevare sia gli interni sia gli esterni dell'edificio è risultata forzata la scelta di operare con un rilievo topografico di appoggio con stazioni sia interne sia esterne collegate opportunamente tramite poligonale chiusa.
La tecnica fotogrammetrica si è resa necessaria per fornire le ortofoto delle facciate ed in particolare degli splendidi affreschi del plafone.
Il rilievo laser scanning ha permesso di definire la complessa geometria dal sottopalco al sottotetto del teatro fornendo una nuvola di punti alla base della modellazione BIM.
Galleria








